468 Work & Rest COSt Croix, USVI
Offered at$368,000
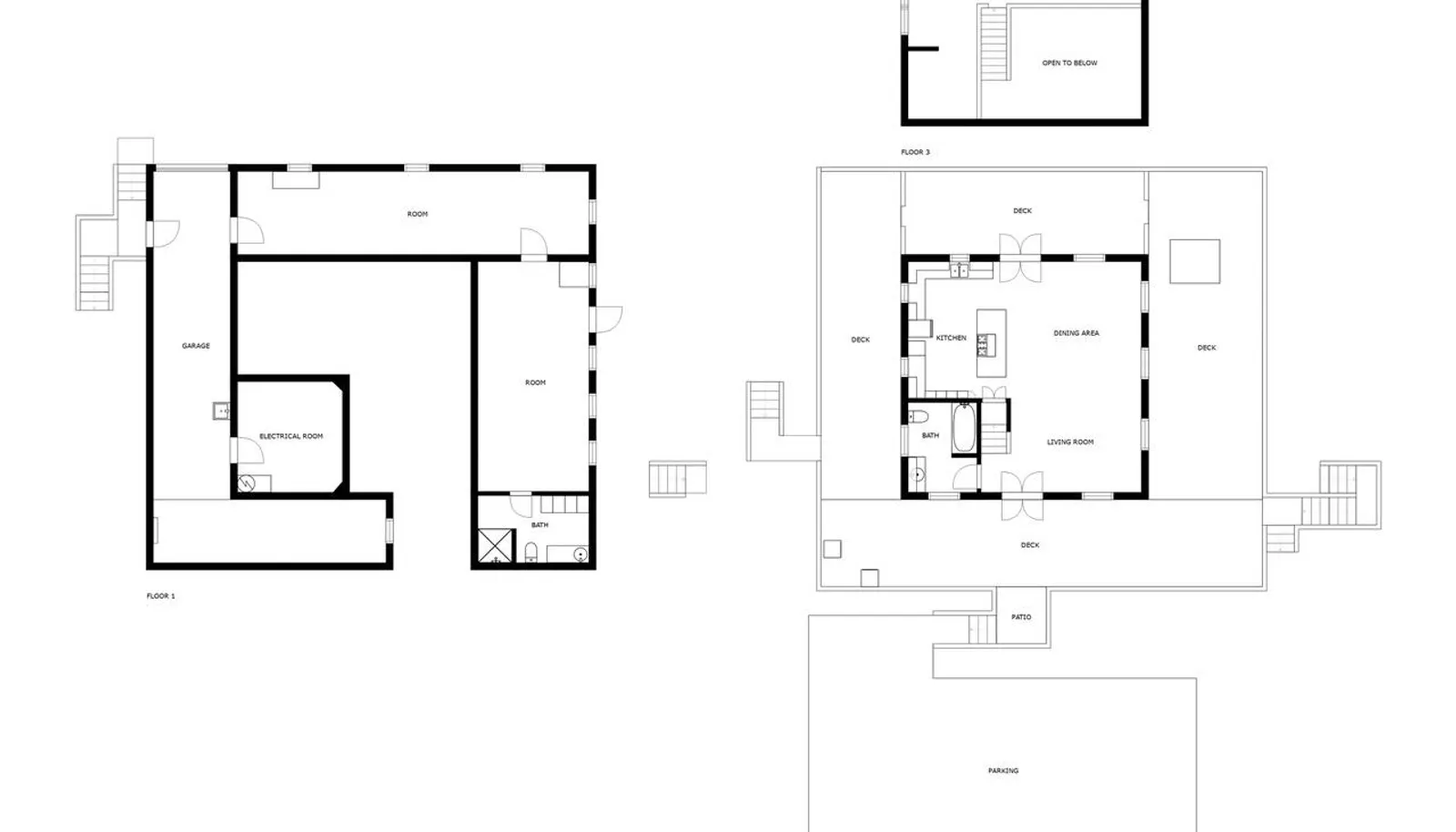
3 Beds
2 Baths
1,774 SqFt
Love the outdoors? Enjoy great breezes and the South Shore sea view from the huge wrap around gallery on this unique home. This amazing space is where you'll want to spend your time, rain or shine! Mature trees add to the charm of this .87 acre fenced property. The home's main floor has an open floor plan of kitchen, dining, and living room, with a nice full bath. Beautiful wood floors and stairs to the loft bedroom add a nice charm. The lower, walk out level offers two... Read More
Gallery













































Prev
Next